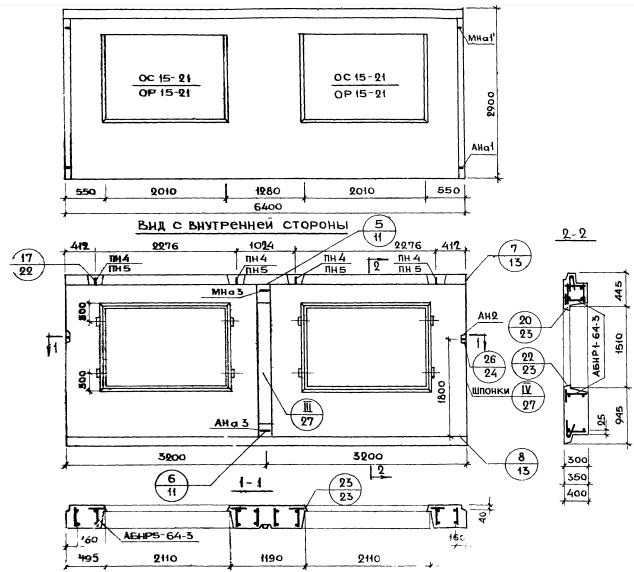
НР5-64.29.35-3

Чертеж изделия:
Чертеж НР5-64.29.35-3
Характеристики изделия:
ПараметрЗначение
Длина6400 мм
Ширина350 мм
Высота2900 мм
Масса5980 кг
Нормативный документСерия 1.132-1

НР5-64.29.35-3   Наружная стеновая панель рядовая по Серии 1.132-1.